Itatiba, localizada entre São Paulo e Campinas, é um exemplo dos interiores brasileiros que têm recebido um crescimento acelerado de condomínios residenciais.
Nossas clientes trouxeram um terreno recém adquirido em um condomínio com a proposta de fazer ali uma casa confortável. A topografia com 6 metros de aclive possibilitou a organização do programa em três níveis, todos conectados diretamente ao solo natural.
Para usufruir melhor da ventilação natural, a área social da casa foi elevada e implantada no primeiro pavimento, três metros acima do nível da rua. Ali, um platô organiza sala, cozinha e piscina. Os ambientes não se confundem, mas se integram por um extenso caixilho de correr. Uma premissa do projeto foi eliminar a duplicidade entre os espaços cotidianos e espaços conhecidos como “gourmet”, comuns na arquitetura das novas casas de interior.
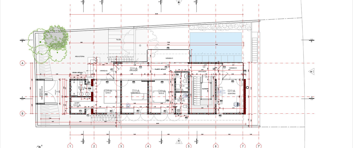
O nível da rua, considerado "subsolo" pela importância da área social, é o acesso a partir da área externa. Ao passar o portão, pode-se adentrar na casa pela escada, pelo elevador — uma demanda cada vez mais presente, principalmente quando pensamos em cuidar dos nossos idosos —, ou pelas escadas externas que acompanham a inclinação do terreno. Esses percursos levam ao nível social e ao primeiro pavimento, onde ficam quartos e escritório.
Essa multiplicidade de caminhos costura a vida da casa. Dentro e fora, pelo meio, pelos lados, de maneira direta ou prosaica. A casa é permeável aos mais variados percursos.
Destacam-se também os materiais, escolhidos a partir da memória afetiva de quem confiou em nós a encomenda deste lar: o tijolo da antiga fábrica de tecidos, a telha de barro que traz o som acolhedor de "casa", o ladrilho hidráulico que refresca em dias quentes e o taco que remete à casa dos avós.






































